TalkSpace - Office Design

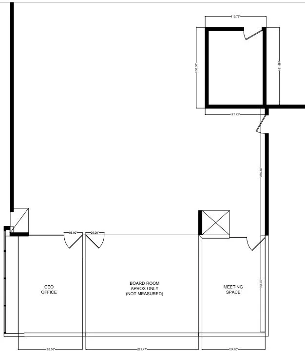
For this project I was the Junior Designer and was in charge of the site analysis and field measuring. I then put together a presentation for the client for the inspiration and mood boards for the designs. There were designs pitched for redesigns for the CEO’s Private office and a collaborative meeting room.

Specialties Provided:

  • -Site Analysis / Field Measure / Target Market & Demographical Analysis

  • -Two options for the CEO’s private office

  • -Design for common meeting room

  • -Sourcing/ Specifying Furniture & Fixtures that are all in stock and able to be shipped & delivered in 5-10 days.

Collaborative Meeting Space

Previous
Previous

Cap't Loui

Next
Next

Clinton Glass